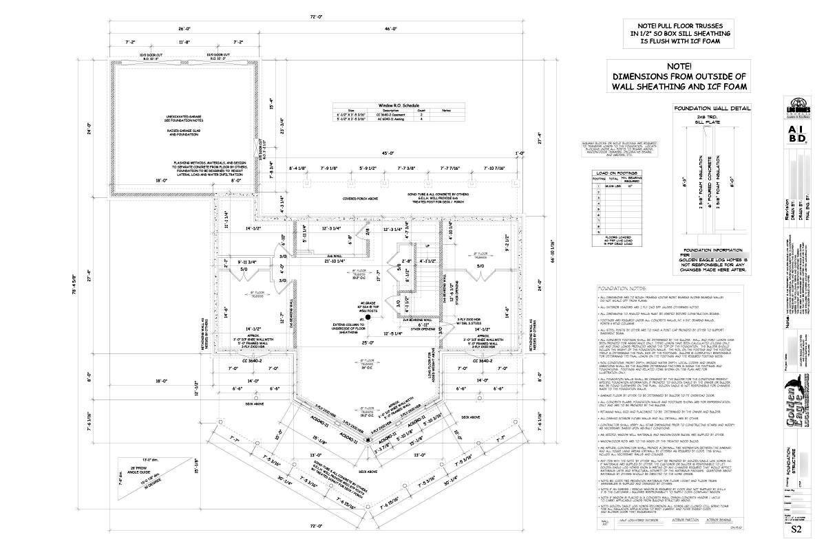
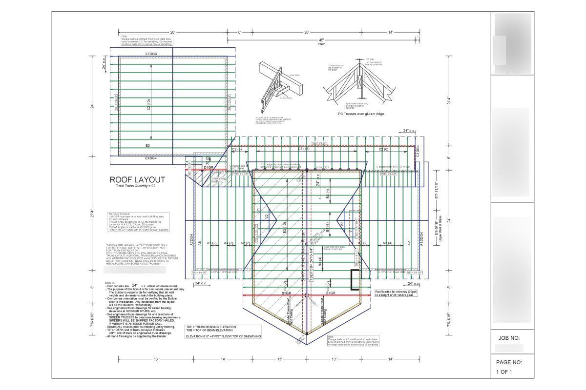
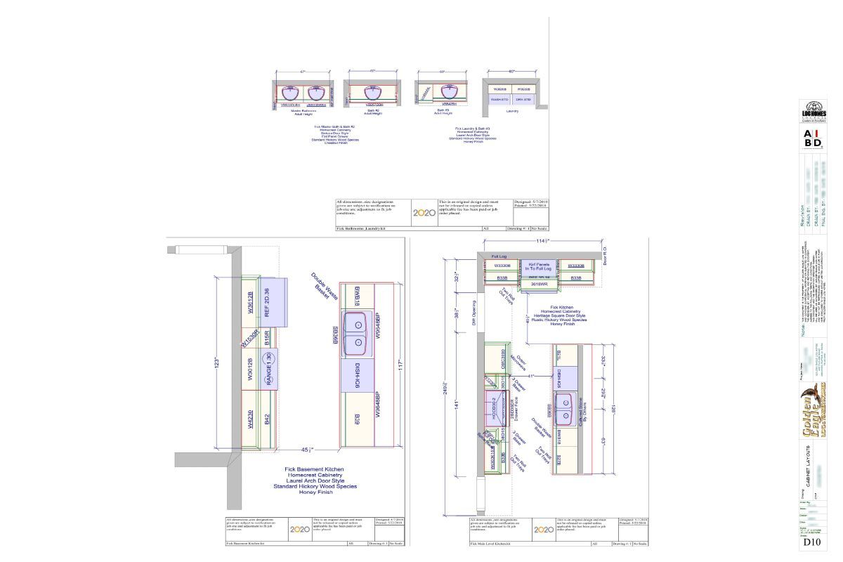
Once we receive the down payment towards your home package, your plans can be forwarded to our Final Engineering and Design Department. Once there, your plans are transformed into what we call final plans. Although your original set of plans may have been good enough for most builders, we choose to take your plans to a whole new level. We want your home to be exactly as we discussed and built exactly to Golden Eagle specifications, so at no additional cost to you, Golden Eagle will provide you or your builder up to 8 sets of "very detailed" final plans similar to what you see below.
Sample Full Log Final Plan Set (Click on a page to enlarge it.)
Note: Plan page count and contents will vary based on your chosen style and size of home.