New England

2470 SqFt Version (no Lower Level)

3974 SqFt Version (with Lower Level)

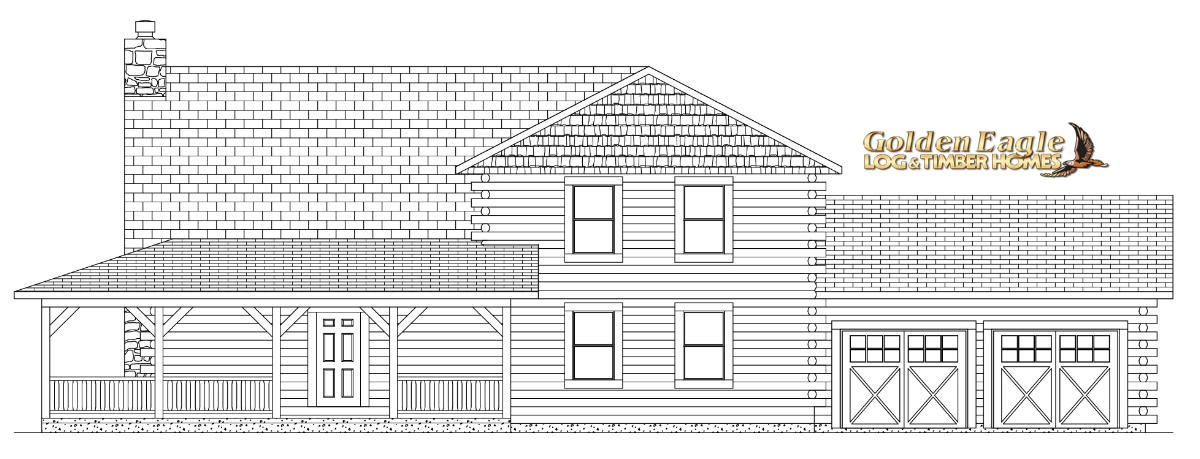
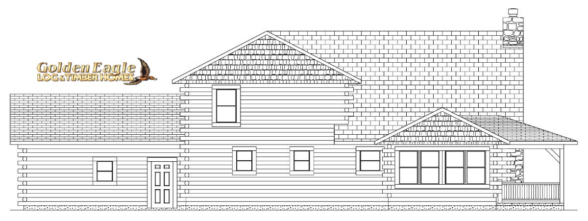
This home has a wraparound porch, attached garage, beautiful master suite, main floor laundry and 4 or more bedrooms upstairs. We recently sold a version of our New England plan and the homeowners added another bathroom in the loft and a family room in the basement. What would you want to change on this plan? Golden Eagle does not charge you more because you are requesting a custom plan or changes to the blueprints. Your package price is based simply on how much material it takes to build your home.
Floor Plan Details
Available Versions: 2470 Square Foot Floor Plan Version (no Lower Level)
3974 Square Foot Floor Plan Version (with Lower Level)
{Remember: All plans are highly customizable. So technically there are an endless number of versions available.}
Bedrooms: 4 Bedrooms
Bathrooms: 3 Bathrooms
Garage Stalls: 2 Stalls
First Floor Laundry:  Yes
First Floor Master Bedroom:  Yes
Log or Timber Style:  All floor plans are available in every log or timber style that we offer
    (square timbers, full/round-log, half/round-log, and more)
Options:  All of our plans can be reversed or flipped in any orientation.
 Nearly any floor plan can have Lofts, Prow Walls, Covered Porches, and Garage Stalls added or removed.
Customization:  This is where we excel... All of our plans can be modified to meet your design goals. Every log and timber home we sell is custom tailored to the home owner's specific needs.

Call for Pricing:   1-800-270-5025 Toll Free

Please reach out to one of our Home Consultants when you are ready to discuss your home plan ideas. Call 1-800-270-5025.

We are open Monday-Friday: 8am - 5pm CST   |   Saturday: (by appointment only)