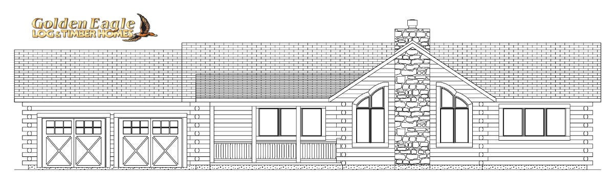
Log Ranch

1882 SqFt Version (no Lower Level)

3635 SqFt Version (with Lower Level)

The octagonal dining area gets a lot of attention in this beautiful log cabin home, but the other amendities throughout the home are abundant. This home has a master suite, large open kitchen, stone fireplace, high ceilings, and a main floor laundry. The split bedroom design is a favorite, as it allows for extra master bedroom privacy. The great room and kitchen area lend themselves perfectly to entertaining friends and family. If you decide to have a larger garage, a mudroom, or a walkout basement – we can make that a reality!
Floor Plan Details
Available Versions: 1882 Square Foot Floor Plan Version (no Lower Level)
3635 Square Foot Floor Plan Version (with Lower Level)
{Remember: All plans are highly customizable. So technically there are an endless number of versions available.}
Bedrooms: 3 to 4 Bedrooms (with optional lower level)
Bathrooms: 2 to 3 Bathrooms (with optional lower level)
Garage Stalls: 2 Stalls
First Floor Laundry:  Yes
First Floor Master Bedroom:  Yes
Log or Timber Style:  All floor plans are available in every log or timber style that we offer
    (square timbers, full/round-log, half/round-log, and more)
Options:  All of our plans can be reversed or flipped in any orientation.
 Nearly any floor plan can have Lofts, Prow Walls, Covered Porches, and Garage Stalls added or removed.
Customization:  This is where we excel... All of our plans can be modified to meet your design goals. Every log and timber home we sell is custom tailored to the home owner's specific needs.

Call for Pricing:   1-800-270-5025 Toll Free

Please reach out to one of our Home Consultants when you are ready to discuss your home plan ideas. Call 1-800-270-5025.

We are open Monday-Friday: 8am - 5pm CST   |   Saturday: (by appointment only)