Hiawatha

2660 SqFt Version (no Lower Level)

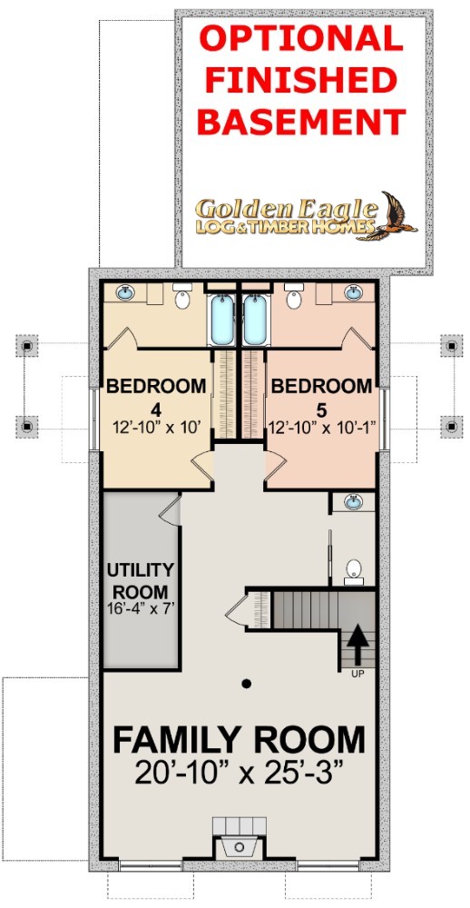
4091 SqFt Version (with Lower Level)

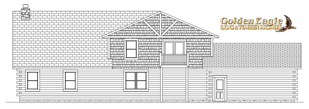
This log home was specifically designed a narrow lake lot but it is the perfect cabin for large parcels of land too. We uniquely wrapped the master bedroom with the walk-in closet and master bath to quiet down the master suite. This home plan was originally designed for light sleeping owners who planned on doing a lot of entertaining. The guest bedrooms are upstairs and each bedroom has their own bathroom. Another benefit for your guest is their own semi-private sitting area and open loft. This medium sized log home has many more extra nice amenities including two covered porches, high vaulted ceilings in the great room, an attached garage, main floor laundry, plenty of glass and a cozy wood burning or gas fireplace. We expect you will want to make a few changes to the plans to make it perfect for your family, what would you change? Please give us a call and allow us to offer you a completely built cost based on your building location.
Floor Plan Details
Available Versions: 2660 Square Foot Floor Plan Version (no Lower Level)
4091 Square Foot Floor Plan Version (with Lower Level)
{Remember: All plans are highly customizable. So technically there are an endless number of versions available.}
Bedrooms: 3 to 5 Bedrooms (with optional lower level)
Bathrooms: 4 to 7 Bathrooms (with optional lower level)
Garage Stalls: 2 Stalls
First Floor Laundry:  Yes
First Floor Master Bedroom:  Yes
Log or Timber Style:  All floor plans are available in every log or timber style that we offer
    (square timbers, full/round-log, half/round-log, and more)
Options:  All of our plans can be reversed or flipped in any orientation.
 Nearly any floor plan can have Lofts, Prow Walls, Covered Porches, and Garage Stalls added or removed.
Customization:  This is where we excel... All of our plans can be modified to meet your design goals. Every log and timber home we sell is custom tailored to the home owner's specific needs.

Call for Pricing:   1-800-270-5025 Toll Free

Please reach out to one of our Home Consultants when you are ready to discuss your home plan ideas. Call 1-800-270-5025.

We are open Monday-Friday: 8am - 5pm CST   |   Saturday: (by appointment only)